
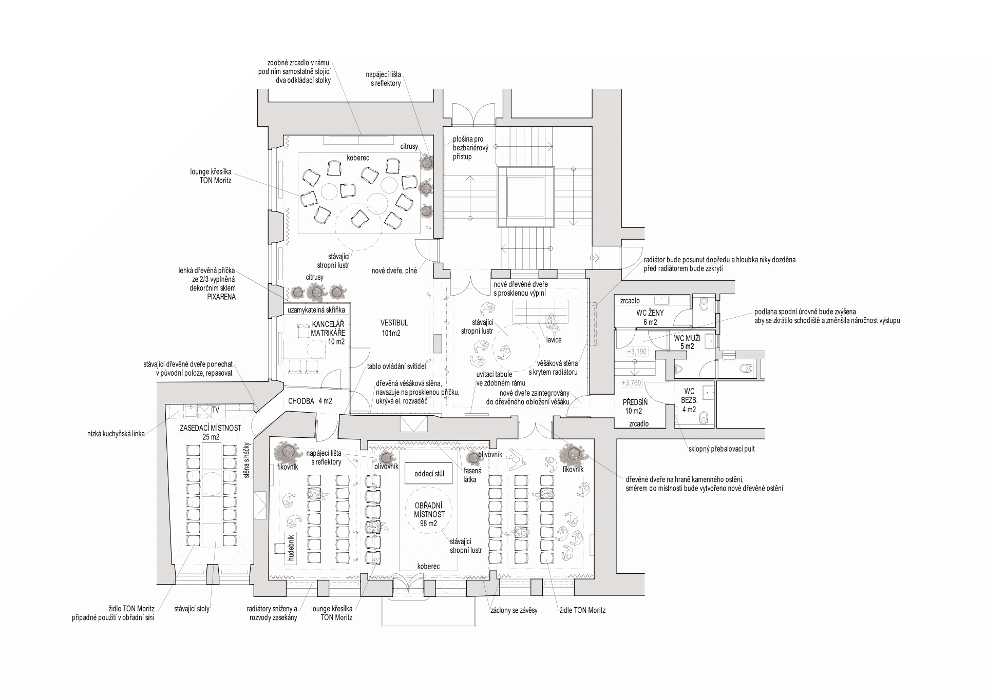
Cílem návrhu je vytvořit reprezentativní a autentický prostor, který bude splňovat funkci ke svatebním obřadům a zároveň bude chloubou radnice, tak aby v něm mohly probíhat významné události města Nového Jičína. Navržený koncept se snaží o úpravy, které jsou v souladu s budovou a s obdobím, ve kterém vznikla. Využívá vzhledových a materiálových prvků, které jsou nadčasové, mohou tak sloužit dlouhá léta a lépe se zhodnotí jejich pořizovací hodnota. Celkový dojem má být vzdušný a prosvětlený prostor s jednoduchou a přehlednou dispozicí. Místnost obřadní síně včetně předsálí je přístupná z velkorysé schodišťové haly hlavní budovy radnice. Stávající dva vstupy jsme ponechali, ale navrhli jsme výměnu stávajících dveří za nové dřevěné, členěné s prosklenou výplní, které vzhledově reagují na stávající okna do haly. Tímto jemným prvkem chceme vizuálně sjednotit vstup s ostatními vstupy na radnici. Samotná významnost místnosti je určená barevnou vitráží v oknech.





